Aalberts IPS Revit plug-in
design complex piping systems faster with up to 15,000 products from Aalberts integrated piping systems
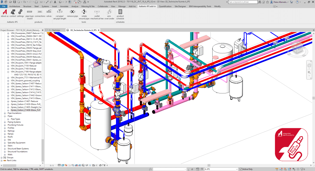
Aalberts integrated piping systems has developed a free plug-in for Autodesk Revit with which users can easily and clearly select Revit families and load them into projects. In addition to a library function, the plugin contains a number of useful tools that simplify the modeling of piping systems within Autodesk Revit.
- suitable for Autodesk Revit versions from 2019
- structured data based on ETIM-MC standard
- optimized pipe types and routing preferences based on application, approval and pipe standard
- selection and modeling tools that simplify workflow and increase productivity
smart tool for faster Revit modeling of pipes and installations with Aalberts integrated piping systems products
software plugin for drawing dynamic piping systems in Revit

- free Revit add-in with direct access to the complete up-to-date product catalog of Aalberts integrated piping systems with up to 15,000 products
- modeling tools to simplify workflow and increase productivity
- pipe system wizard with simple filtering options by application, product lines, pipe material and quality standards


